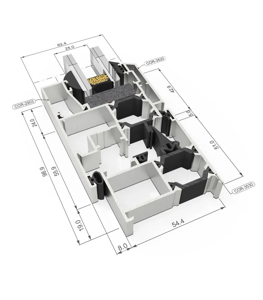
Compatible con cualquier herraje de canal 16 estándar del mercado, este sistema abisagrado de 54 mm de profundidad de marco y una rotura de puente térmico de 24 mm se presenta como una solución versátil para climas suaves.
Posibilidades
» Herraje de seguridad
» Herraje oculto
» Accesibilidad